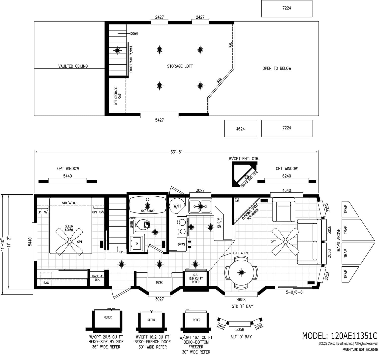
Homes | Alpine Lofts AL11351C