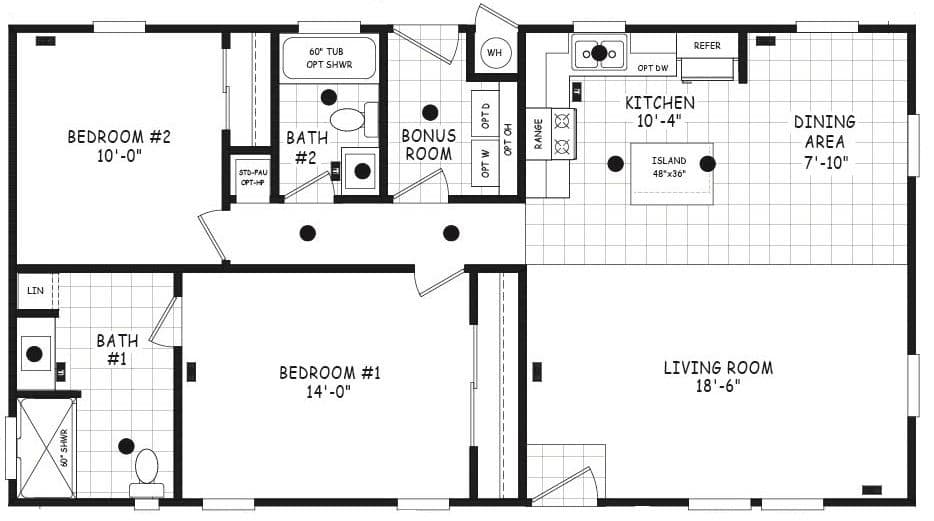
Homes | Edge 24442A