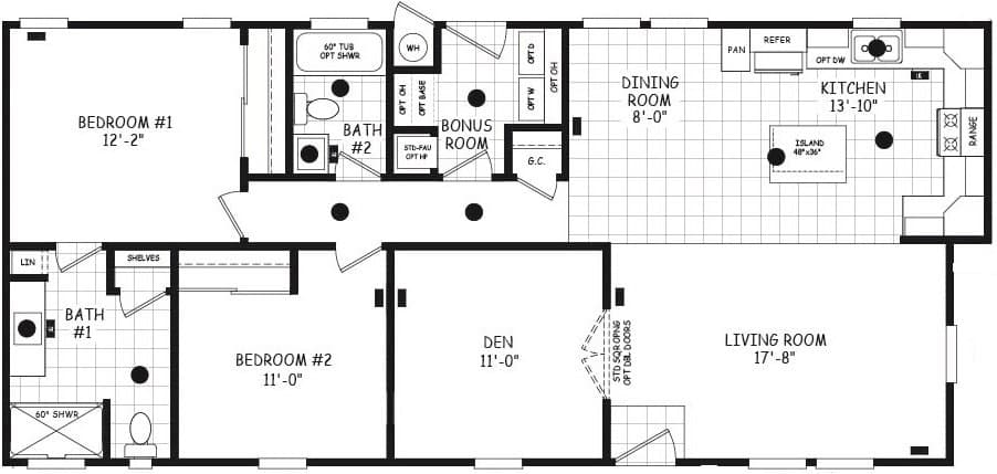
Homes | Edge 24522A