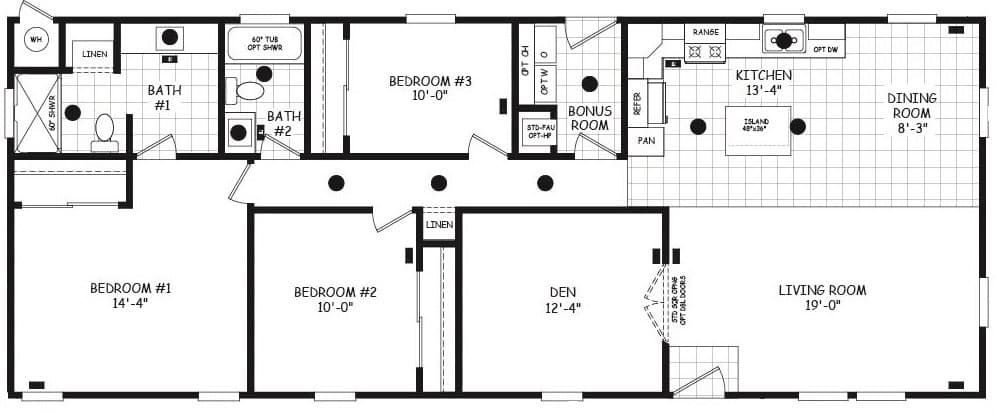
Homes | Edge 24603A