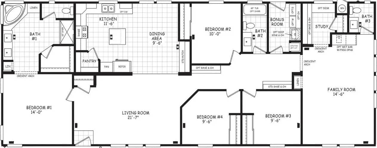
Homes | Edge 30764A