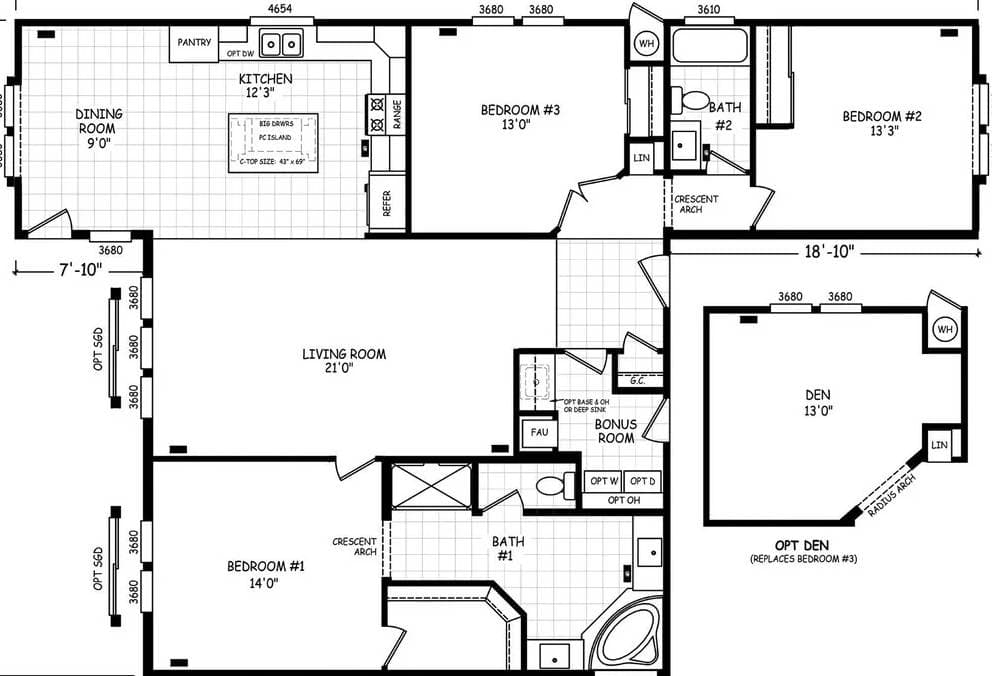
Homes | Pinnacle 40593A