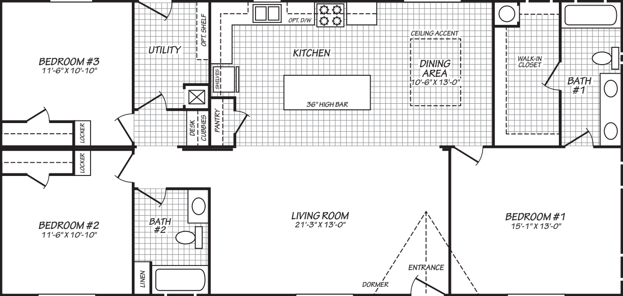
Homes | The Sunbeam (28563N)