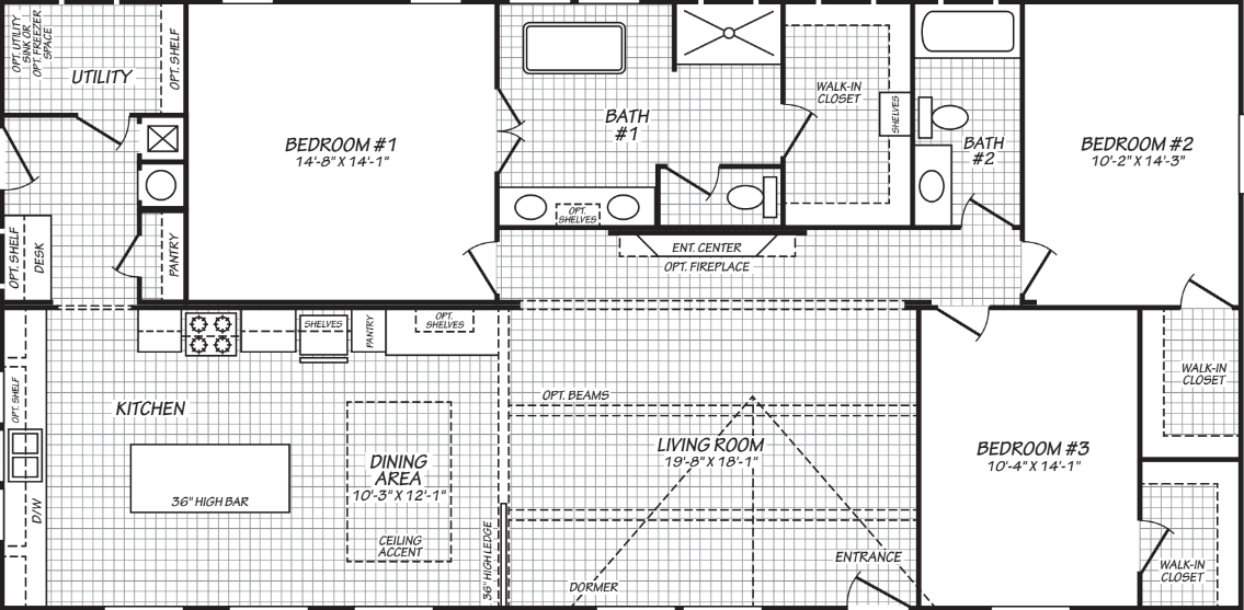
Homes | The Clover (30603F)