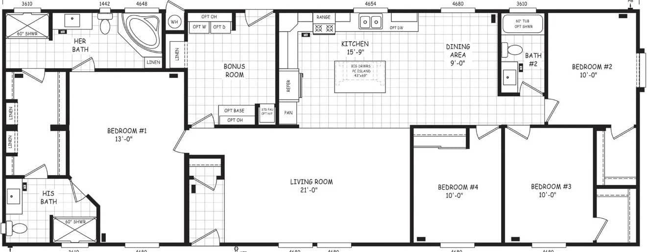
Homes | Edge 28724A