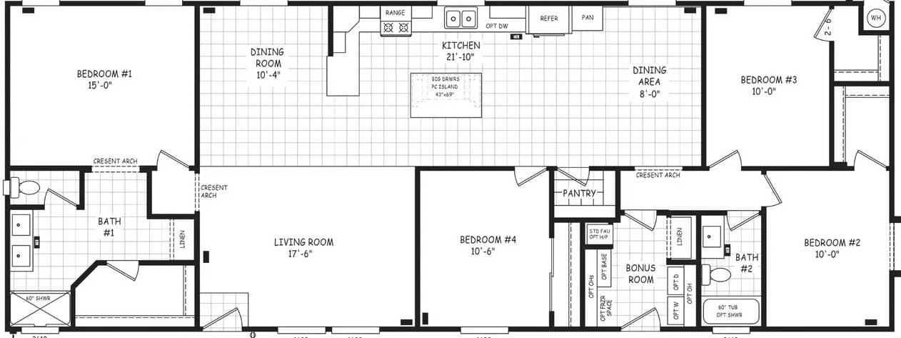
Homes | Edge 28724B